TRETTIO:暮らし方に合わせて選べる3つのスタイル
TRETTIOの選べる3つのスタイル
あなたの暮らしにぴったり寄り添う、選ぶ楽しさを。
TRETTIO VALO
(トレッティオ・バロ)
TRETTIOの選べる間取り
家づくりに欠かせない間取りづくりは、時に難しい課題です。
「どんな間取りがいいか」と聞かれても、すぐに答えは出ないもの。
TRETTIOは、白紙からではなく、用意された複数の間取りから自分に合うものを選ぶスタイル。
図面だけでは伝わりにくい部分も、実際の建物を見て選べるので安心です。
実際の建築事例に基づいた安心の選択が可能です。
TRETTIO ALKU
(トレッティオ・アルク)

床面積 / 1F 54.66㎡(16.54坪) 2F 46.38㎡(14.03坪)
延床面積 / 101.04㎡(30.57坪)
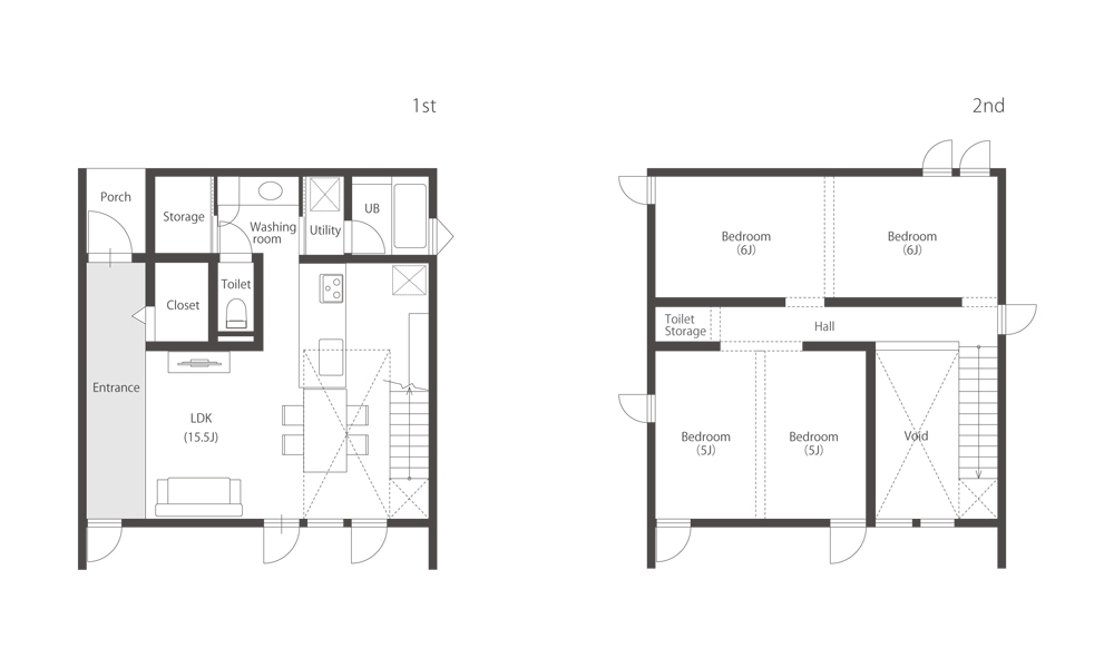
TRETTIO GRAD
(トレッティオ・グラード)

床面積 / 1F 52.99㎡(16.02坪) 2F 45.54㎡(13.77坪)
延床面積 / 98.53㎡(29.79坪)
TRETTIO VALO
(トレッティオ・バロ)2F

床面積 / 1F 50.51㎡(15.28坪) 2F 45.53㎡(13.77坪)
延床面積 / 96.04㎡(29.05坪)
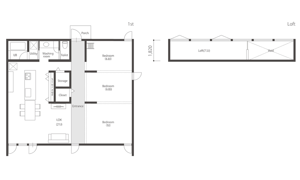
TRETTIO VALO
(トレッティオ・バロ)平屋

床面積 / 1F 99.37㎡(30.05坪)
延床面積 / 99.37㎡(30.05坪)
TRETTIOの標準仕様
外装材から住宅設備まで、洗練されたデザインと高機能を兼ね備えた、TRETTIOならではの上質な標準仕様をご用意。
素足で歩きたくなる無垢の床や、世界中で愛される名作デザインも、すべてが標準装備です。
外壁
金属サイディング
外壁
吹付塗装
外壁
木製サイディング
玄関ドア
アルミ断熱ドア
サッシ
高断熱サッシ
床材
フローリング
床材
メーカー品畳
階段
鉄骨+積層材
内装材
ビニールクロス
建具
メーカー品
照明(セレクト可)
メーカー品
オリジナルクラフト
食器棚
キッチン
I型
ユーティリティー
置き型洗面ボウル
ユーティリティー
FRP浴槽
トイレ
温水洗浄便座






